Descriere casa vila
Oferta in EXCLUSIVITATE !!!Agentia imobiliara MARIS, oferim spre vanzare casa noua, individuala, pe un singur nivel in Sancraiu de Mures zona Complex Laguna -Pestisorul de Aur.
Casa este semifinisata, constructie din caramida, fundatie din beton + boltari, acoperis din tabla, izolata exterior, racordata la utiliatai (gaze, apa si canal, electricitate)
Acces din strada asfaltata, 20 m drum privat pietrut.
Suprafata desfasurata a casei este de mp suprafata utila mp, suprafata terenului 380 mp
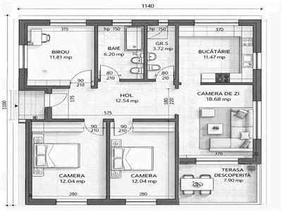
Compusa din: bucatarie si living open space cu acces spre terasa, 3 dormitoare, 2 bai + terasa acoperita la intrare, terasa acoperita spre curte.
Suprafata utila: 88.5 mp + terase 9 mp. Suprafata construita 125 mp.
Pret: 183.000 euro negociabil !
Agentia MARIS nu percepe comision cumparatorului.
Informatii suplimentare si vizionari Luni - Vineri orele 9-18 la telefon.
Caracteristici
- Numar Camere: 4
- Zona:
- Suprafata utila: 90 mp
- Numar Bai: 2
- An Constructie: 2026
- Suprafata Teren: 380 mp
Caracteristici generale
- Acces auto: Acces auto
- Acces Casa: Pietonal Auto Autobuz
- Acces internet: Wireless Fibra optica
- Acoperis: Tabla
- Bucatarie: Deschisa
- Calorifere: Da
- Curte: Pavata
- Destinatie: Locuinta
- Ferestre Casa: Term. PVC
- Incalzire Casa: Centrala Termica
- Izolatii termice: Exterior
- Materiale: Caramida Beton Armat Lemn
- Pereti: Lavabil
- Plansee: Beton
- Stadiu Finisare: Semifinisat
- Strazi: Pietruite Asfaltate
- Structura Casa: Caramida
- Teren imprejmuit: Teren imprejmuit
- Tip Casa: Individuala
- Tip Curte: Individuala
- Utilitati: Curent Apa Canalizare Gaz CATV Telefon Internet





















